
Lägenheter Kronåsvägen 45-55
De tre husen på Kronåsvägen 45-55 byggdes 2021/2022.
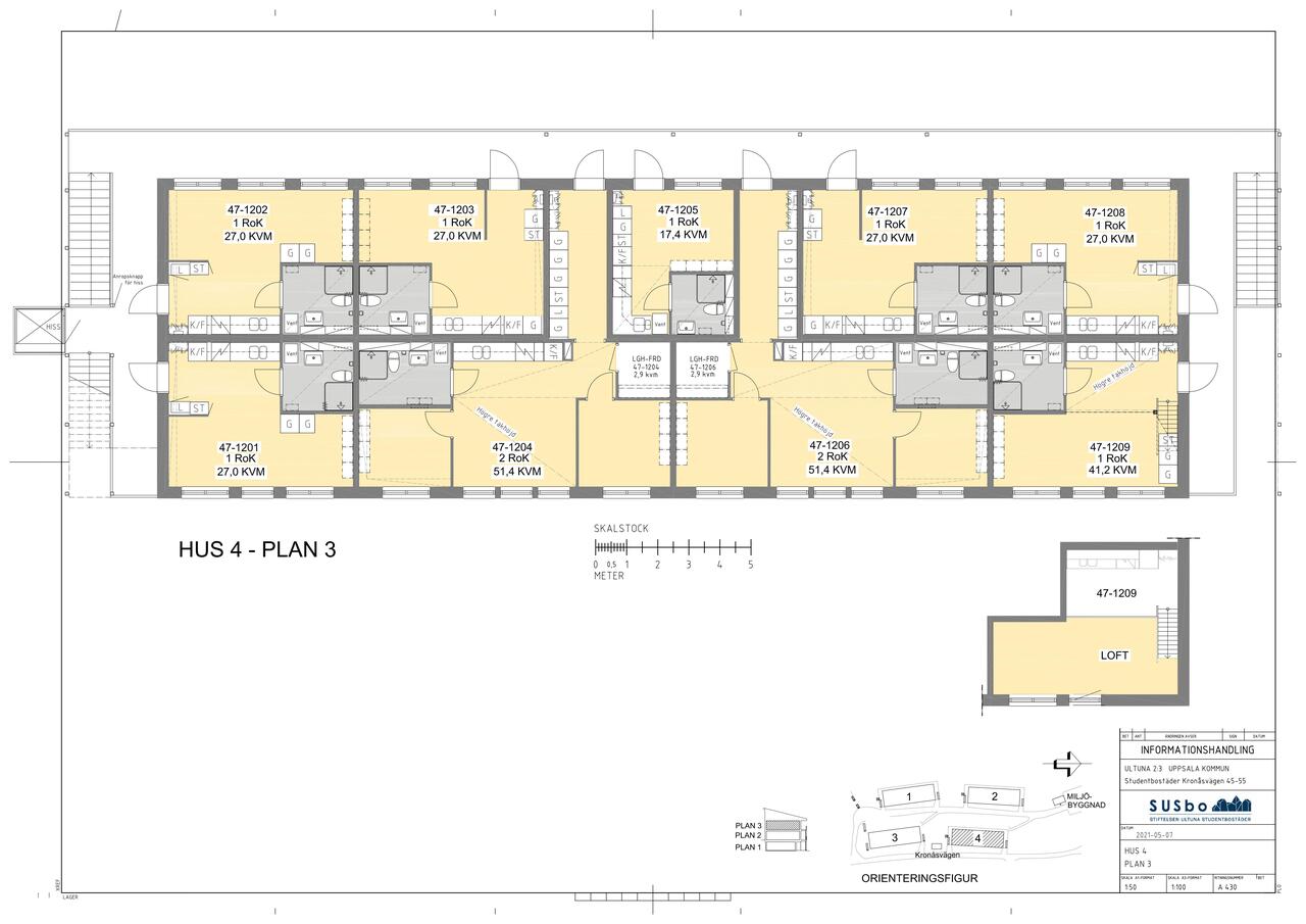
Ettorna har en boendeyta 17,4-27 m², tvåan 34,5m² och treorna 51,4m². Treorna på plan tre har en högre takhöjd. Ettan med loft har en boendeyta på 41,2m².
Ettorna och tvåan på plan ett har en uteplats under tak, vid entrén.
Hyror
Etta 18,2m² 5 116kr/månad
Etta 27m² 5 489kr/mån
Etta med loft 41,2m² 7 778kr/mån
Tvåa 34m² 7 226kr/mån
Trea 51,4m² vån.2 8 742kr/mån
Trea 51,4m² vån.3 8 932kr/mån
Etta 17,4m² 5 496kr/mån, 10 månaders hyra. De nya kontrakt som skrivs blir det 12 månaders hyra och beloppet är då 4 580 kr/månad. Från årsskiftet 2025/2026 har alla lägenheter 12 månaders hyra.

Etta 18,2m² bottenvåningen
Etta 18,2m² bottenvåning
Etta 27m², plan 2
Etta 27m², plan 2
Etta 27m², plan 2
Etta 27m², plan 2
Etta 27m², plan 2




